+420 774 300 056
Nejširší nabídka za výjimečné ceny!
Bezpečně naplnit, zdvihnout a vysypat.
S námi zvednete vše...
Kvalita a bezpečnost, to jsou vidle BOSCARO
Zvolte kvalitu pro Vaši bezpečnost.
Zvyšte efektivitu svého stroje.
Zajistěte bezpečně svůj prostor.
Nepotřebný materiál bezpečně dolů.
Rychlá a bezpečná manipulace.
(Vy)bavte se pro práci.
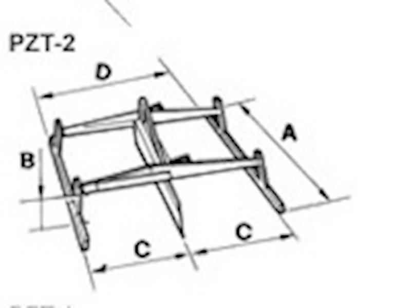
Nosič střešních tašek umožňuje automatické vykládání bez ručního zásahu obsluhy se speciálním, moderním systémem uvolňování.